Top.Mail.Ru
rnd@dia-m.ru 8 (800) 234-05-08
+7 (863) 303-55-00
Ваш регион Москва?

Вернуться назад

Шкаф вытяжной для работы с кислотами, ширина 180 см, корпус – металлокаркас, столешница – цельная керамика Fridurit, с нагревательным блоком, ЛОиП

Артикул Цена, руб. Наличие на складе Количество
ЛАБ-PRO ШВВП 180.85.245 F20 По запросу Под заказ

Описание

Каталоги, буклеты, видео

Оплата и доставка

ЛАБ-PRO ШВВП 180.85.245 F20

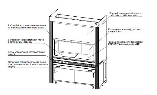
  • Рабочая поверхность — монолитная керамика Fridurit, 20 мм;
  • нагревательный блок в центре столешницы;
  • внутренние размеры бокса, Ш × Г × В, мм — 1700 × 730 × 1150;
  • внешние габариты, Ш × Г × В, мм — 1800 × 850 × 2450.
Аксессуары: подкатная тумба из полипропилена ЛАБ-PRO НПТ 155.45.70 РР.


Шкафы вытяжные для работы с кислотами ЛАБ-PRO ШВВП, с нагревательным блоком:

  • направляющие стойки — алюминиевый профиль;
  • передний бортик (предохраняет от утечки разлитой жидкости) — полипропилен 20 мм;
  • подъемный экран — закаленное стекло;
  • верхний неподвижный экран — TRESPA Athlon* толщиной 6 мм;
  • внутренний рабочий бокс из кислотостойкого полипропилена;
  • верхний козырек рабочего бокса — полипропилен толщиной 6 мм;
  • боковые и задняя панели — полипропилен толщиной 6 мм;
  • передние стойки рабочего бокса — полипропилен, 15 мм;
  • облицовка стенок бокса и передних панелей огнеупорными, химически стойкими керамическими плитами на высоту 380 мм по всему периметру;
  • изолированный светодиодный пылевлагозащищенный светильник;
  • фланец d = 250 мм;
  • два уровня вытяжки;
  • нагревательная платформа из стеклокерамики:
    • размер 650 × 500 мм;
    • зона нагрева 580 × 430 мм;
    • мощность до 5,7 кВт;
    • нагрев до 400 °С;
    • две независимые зоны нагрева;
    • два блока управления нагревом вынесены на сервисную панель;
  • рамное основание — сборно-разборный металлический каркас;
  • сервисная панель — алюминиевый профиль;
  • выключатель;
  • автомат аварийного отключения питания;
  • две брызгозащищенные розетки с крышкой;
  • электромонтажная коробка на оборотной стороне;
  • регулируемые опоры.

*—Trespa Athlon — монолитный HPL пластик, влаго- и износостойкий, применяется для изготовления элементов, не контактирующих с агрессивными реагентами.


Рабочие поверхности:

VITE — композитный материал на основе эпоксидных смол. Монолитная бесшовная поверхность, устойчивая к воздействию большинства химических реактивов.

FRIDURIT — монолитная бесшовная лабораторная керамика толщиной 20 мм с глазурованной термостойкой поверхностью.

  • Устойчивость к воздействию большинства агрессивных химических веществ, в т. ч.: концентрированных щелочей и кислот (за исключением плавиковой кислоты);
  • легкая очистка и дезинфекция внутренних и внешних поверхностей;
  • высокая прочность и стойкость к абразивному износу (твердость 7 по шкале Мооса);
  • абсолютно негорючий и жаропрочный материал (класс А1 по европейской классификации пожарной безопасности);
  • производится только из природных компонентов без использования каких-либо искусственных примесей или добавок.
Раскрыть описание

Доставка

Доставка осуществляется по всей России и странам СНГ. Возможен самовывоз со склада по адресу Московская область, г. Мытищи, 7-й Ленинский переулок, д.13. Доставка по Москве и Московской области осуществляется бесплатно.

Цена товара указана со склада в Москве и не включает расходы на доставку в другие города.

Вы можете выбрать способ доставки в личном кабинете, чтобы он автоматически указывался при оформлении всех последующих заказов. При выборе варианта «Транспортная компания по выбору клиента» укажите в комментариях транспортную компанию, с которой вы предпочитаете работать.

Точная стоимость доставки рассчитывается менеджером при подтверждении заказа в зависимости от весообъемных характеристик и дальности. Товары, требующие особого температурного режима, доставляются с соблюдением требуемых условий. Если в заказе есть прекурсоры, необходимо оформить официальное письмо об отпуске прекурсоров. (образец письма об отпуске прекурсоров)


Оплата

Компания Диаэм работает с юридическими и физическими лицами. После оформления заказа продавец-консультант сформирует счет и направит его вам по электронной почте и на страницу заказа в Личном кабинете на сайте. Вы также можете сами сформировать счет из Корзины, авторизовавшись на сайте. Счет оплачивается через банк. Вы можете оплатить товар в кассе Диаэм или любом отделении банка.

Для получения товара необходимо предоставление доверенности организации, а для получения товара при оплате физическим лицом необходим паспорт.

Раскрыть анкету для отправки запроса

Аксессуары
Показать больше аксессуаров
Похожие товары
Ваш заказ будет обработан
в ближайшее время.
Мы пришлем уведомление, как только все будет готово. Спасибо!